Projectes
Estudi
Contacte
Projectes
Estudi
Contacte
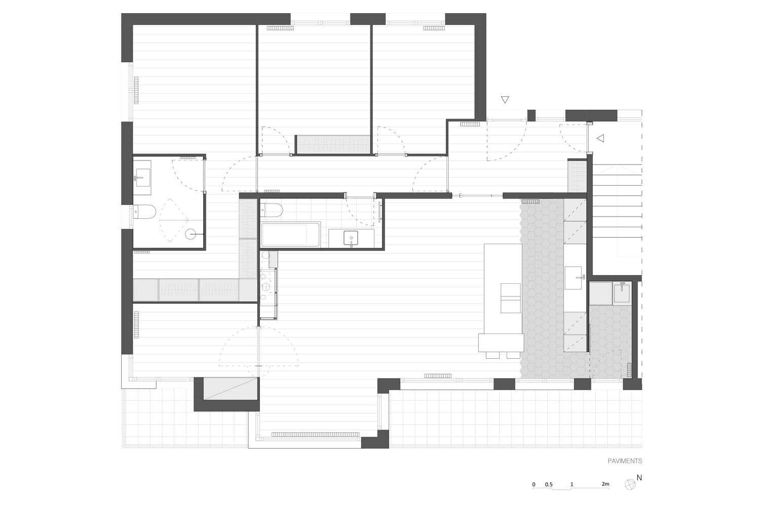
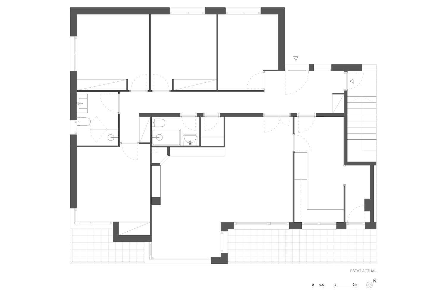
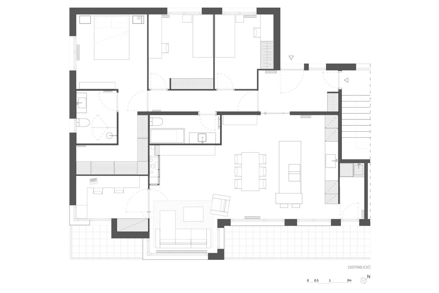
Habitatge SPT
Superfície
110m2
Any
2019
Ubicació
Sant Pere de Torelló
Fotografia
Judith Casas
Projecte anterior
Projecte següent