L’Estètica

L’Estètica és la nova reforma comercial com a centre de tractaments corporals i facials al passeig de Prats.

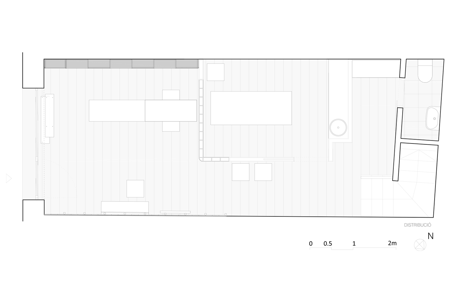
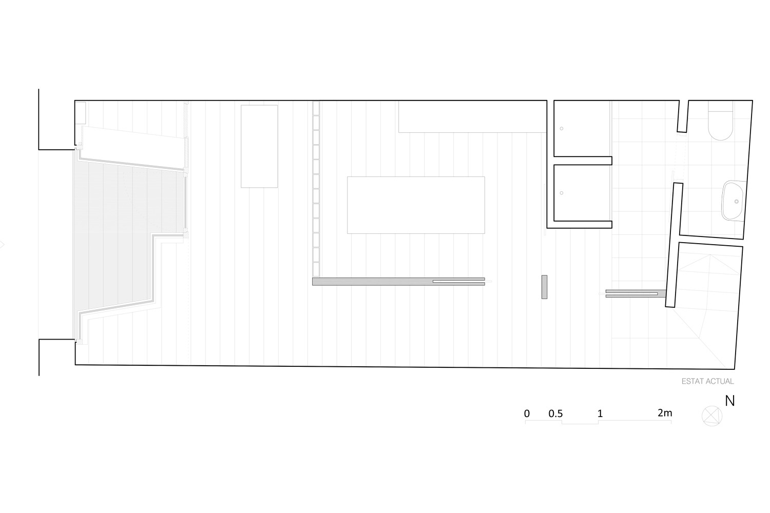
S’ha reformat per complet el nou espai eliminant l’aparador existent que limitava molts usos. La nova distribució aprofita superfície perduda, fins ara espai semi exterior. El projecte millora la visibilitat exterior i també l’entrada de llum. La nova distribució és oberta, sense marcar delimitacions entre els diferents espais.

El taulell és l’element central, un punt de confluència, espai de benvinguda, d’atenció i de venta. El segon element potencial del projecte és la prestatgeria com a expositor, 100% visible des de l’exterior, creant un ritme de nínxols aleatori i de diferents dimensions. La sala interior es manté com espai de tractaments corporals. L’element aparador s’ha previst com un element de suport amb la mínima essència, donant prioritat el producte exposat.

La nova reforma aporta una mirada de nous materials, textures i formes per donar-li un significat suggestiu. És una estratègia en disseny, actuar en determinades zones. Aporta un valor més enllà, una mirada més profunda dels mateixos elements com per exemple l’enllistonat del taulell perquè tingui més força en comparació a un plafó llis.

Superfície

  • 35 m²

Any

  • 2016

Ubicació

  • Prats de Lluçanès

Fotografia

Disseny gràfic