Projectes
Estudi
Contacte
Projectes
Estudi
Contacte
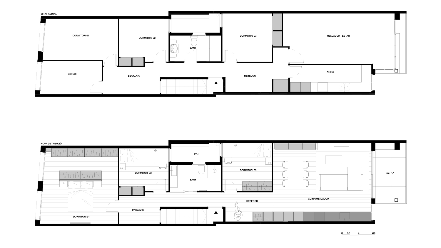
Reforma integral minimalista
Projecte anterior
Projecte següent